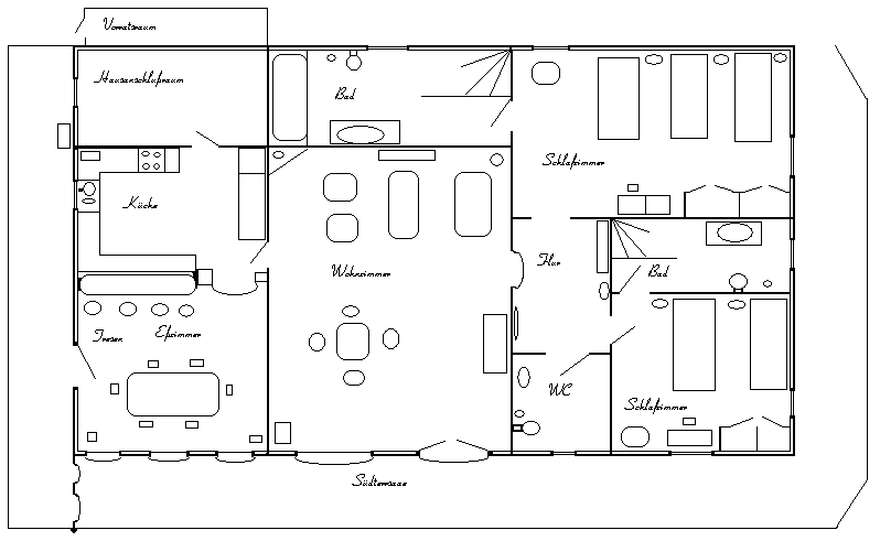
Einrichtung, EG
Übersichtsplan der Aufteilung des Erdgeschosses.

In jedes der beiden Schlafzimmer des Erdgeschosses passt ein weiteres Bett hinein.
Wenn Sie mit mehr als ingesamt 10 Personen anreisen (maximal bis 15 Personen), passt noch je ein weiteres Bett in die drei Schlafzimmer des Obergeschosses und je eines in die zwei Schlafzimmer des Erdgeschosses.